Die Toppler-Grundschule in Rothenburg braucht mehr Platz | FLZ.de

foobarious
arrow_back_rounded
Lesefortschritt
Veröffentlicht am 04.02.2025 09:20

Die Toppler-Grundschule in Rothenburg braucht mehr Platz

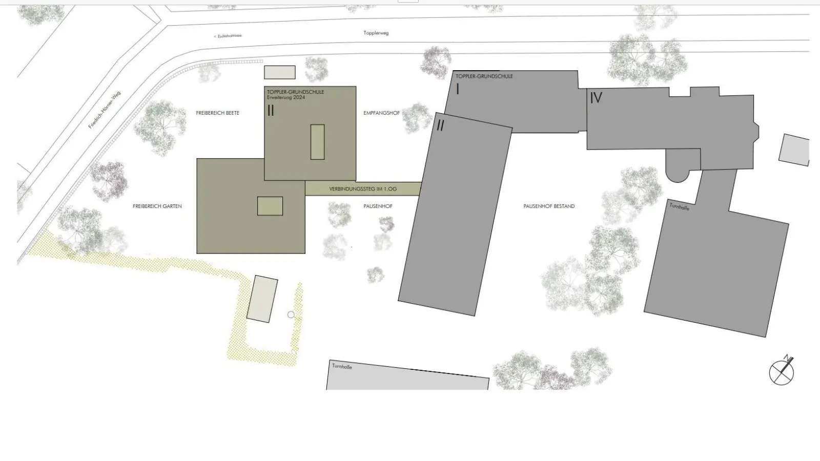
Direkt neben dem bisherigen Gebäudekomplex sollen die zwei Würfel stehen und über einen Steg barrierefrei angebunden werden. (Darstellung: Stadt Rothenburg)
Direkt neben dem bisherigen Gebäudekomplex sollen die zwei Würfel stehen und über einen Steg barrierefrei angebunden werden. (Darstellung: Stadt Rothenburg)
Direkt neben dem bisherigen Gebäudekomplex sollen die zwei Würfel stehen und über einen Steg barrierefrei angebunden werden. (Darstellung: Stadt Rothenburg)

Die Toppler-Grundschule platzt aus alle Nähten. Grund sind die steigenden Schülerzahlen, gesellschaftliche Veränderungen sowie der Wunsch und ab 2026 auch der Rechtsanspruch der Eltern auf eine umfassende Ganztagsbetreuung ihrer Kinder. Bisher ist der Ganztagsbereich im gesamten Schulgebäude verstreut.

Wie der stellvertretende Leiter des Stadtbauamtes, Andreas Singer, mitteilt, wird jetzt neben der Topplerschule ein Neubau erfolgen, der zwei Würfeln ähnelt, die sich ineinanderfügen. Beide sind mit zwei Vollgeschossen geplant. Im südlich gelegene Würfel sollen vier Klassenzimmer, zwei Gruppenräume und Räume für das pädagogische Personal auf zwei Ebenen eingerichtet werden. Der zweite Würfel ist für die Nachmittagsbetreuung vorgesehen.

Mit dem Neubau wird dem Wunsch der Lehrkräfte nach einem eigenständigen und zusammenhängenden Bereich für die Ganztagsbetreuung entsprochen – mit kurzen Wegen. Das neue Gebäude wird barrierefrei sein und mit einem Aufzug ausgestattet werden.

Zwischen dem Neubau und dem Bestandsgebäude der Toppler-Schule ist ein Verbindungssteg im ersten Obergeschoss geplant. Das neue Gebäude selbst wird mit vielen Holzelementen ausgestattet, und ist damit sehr nachhaltig, so Singer.

Hoffnung, Ende März loszulegen

Im Inneren wird es eine massive Holztreppe geben. Die Tragkonstruktion der beiden Gebäudewürfel besteht aus Stahlbeton. Um den Neubau sind eine Gartenfreifläche und ein Areal für Beete vorgesehen. Außerdem wird der bisherige Pausenhof vergrößert. Er soll eine Begegnungsfläche für alle Schülerinnen und Schüler der gesamten Toppler-Grundschule werden. Baubeginn sei für Ende März 2025 vorgesehen, so Singer, wenn das Wetter mitspiele.

Der Pressereferent der Stadt, Thomas Müller, verwies auf die archäologischen Voruntersuchungen des Baugebiets durch eine Fachfirma: Diese seien in der Stadt grundsätzlich verpflichtend. Bisher liege jedoch noch kein abschließender Untersuchungsbericht vor.

Derzeit türmen sich Erdhaufen auf dem Neubaugelände, in manchen Bereichen sammelt sich Wasser, andere Bereiche sind mit Planen abgedeckt. Wenn kein Bodendenkmal oder Ähnliches entdeckt wird, stehe dem Baubeginn Ende März nichts mehr im Wege, so Müller.

Ende 2026 soll das Schulgebäude dann bezugsfähig sein. Die Kostenschätzung liegt derzeit bei rund 9,4 Millionen Euro. Nach Abzug der Fördergelder kommen auf die Stadt rund 3,4 Millionen Euro an Kosten zu.


Von Margit Schwandt
north